5 pièces au Memmo Center à Fontvieille avec belle vue.

  • € 28 000
Avenue des Guelfes, Fontvieille, Monaco
À louer
5 pièces au Memmo Center à Fontvieille avec belle vue.
Avenue des Guelfes, Fontvieille, Monaco
  • € 28 000

Aperçu

ID de la propriété: HHL19042026
  • Appartement
  • Type de propriété
  • 4
  • Chambres
  • 5
  • Pièces
  • 2
  • Parking
  • 305

Description

Immeuble de luxe à Fontvieille offrant des prestations haut de gamme, des finitions élégantes et une architecture contemporaine. Situé dans un quartier prestigieux, il bénéficie d’un environnement calme, proche des commerces, du port et des commodités. Résidence sécurisée avec services exclusifs, idéale pour un cadre de vie raffiné en Principauté.

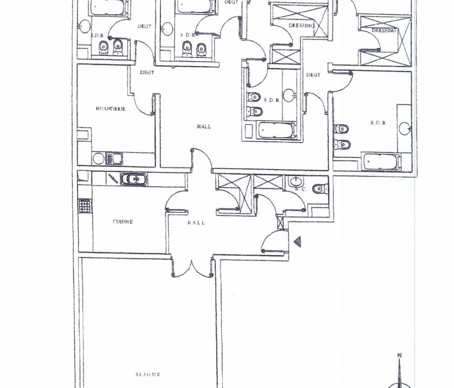
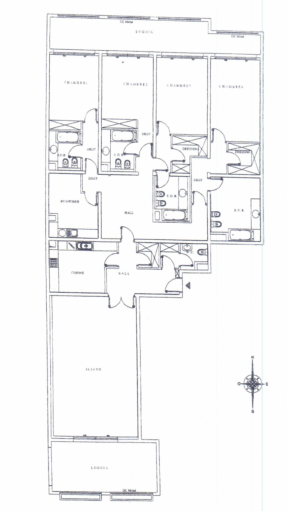
Cet appartement de 5 pièces se compose d’un élégant hall d’entrée ouvrant sur un vaste séjour prolongé par une loggia. Il comprend quatre chambres, chacune disposant de sa propre salle de bains et de son dressing, toutes donnant accès à une grande terrasse offrant un bel espace extérieur. Une cuisine entièrement équipée ainsi qu’une buanderie viennent compléter ce bien fonctionnel et raffiné.

Deux places de parking et deux caves sont également incluses.

Situé dans une résidence récente et sécurisée, avec réception disponible 7j/7 et 24h/24, salle de fitness et buanderies, cet appartement bénéficie de prestations haut de gamme et d’un confort de vie exceptionnel. L’ensemble offre une atmosphère élégante, lumineuse et parfaitement entretenue, idéale pour une résidence principale ou secondaire de standing.

  • Ville Monaco
  • Zone Fontvieille

Détails

Mis à jour le avril 20, 2026 à 9:26 am
  • ID de la propriété: HHL19042026
  • Prix: € 28 000
  • Superficie totale: 305 m²
  • Chambres: 4
  • Pièces: 5
  • Salles de bains: 4
  • Parking: 2
  • Type de propriété: Appartement
  • Statut de la propriété: À louer

Détails supplémentaires

  • Date de libération: 01/06/2026
  • Superficie habitable: 252 m²
  • Superficie terrasse: 53 m²
  • État: Prestation Luxueuse
  • Caves: 2
  • Exposition: sud-ouest
  • Vue: Vue mer
  • Charges mensuelles: € 4000
  • Étage: 3

Vidéo

Visite virtuelle à 360

Propriétés similaires

Comparer les listes

Comparez
Harroch Agency
  • Harroch Agency
+33 6 80 86 64 47
immobilier monaco 2023